I went to see a S70 yesterday and while there found that one of the rear windows was stuck open. The owner's kid had been in the car and opened it and then they couldn't close it again.
I hoped it was an issue with the master switch but I went back with a new Switch Doctor one and a good used OE one. All had the same issue of not closing the window so I am assuming it is not the master switch. It is more likely a broken LF door wiring harness wire but I will try a rear door switch spare I have as a long shot.
Assuming none of this works, is there any way to power the motor with a direct feed from the battery to see if that will close it?
I could remove the door switch but need to know which pin to power. I could also remove the door multi-plug at the B pillar and and power the pin directly in the harness but again need to know which pin to power. I am not sure if that would work though as do you not need both switches to be linked for that to work? Maybe have to power from the door switch?
Appreciate any wisdom on this problem!
Neil.
How to close a stuck rear door window? Topic is solved
-
scot850
- Posts: 14864
- Joined: 5 April 2010
- Year and Model: 2000 V70 R
- Location: Calgary, Alberta, Canada
- Has thanked: 1836 times
- Been thanked: 1709 times
How to close a stuck rear door window?
2006 V70 2.5T AWD Polestar tune
2000 V70 R - still being an endless PITA
2006 XC70 - Our son now has this and still parked in our garage
2003 Toyota 4Runner V8 Limited
2015 Kia Sportage EX-L - Sold
1993 850 GLT -Sold
1998 V70 XC - Sold
1997 Volvo 850 SE NA - Went to niece in California - Sold
2000 V70 SE NA - Sold
2000 V70 R - still being an endless PITA
2006 XC70 - Our son now has this and still parked in our garage
2003 Toyota 4Runner V8 Limited
2015 Kia Sportage EX-L - Sold
1993 850 GLT -Sold
1998 V70 XC - Sold
1997 Volvo 850 SE NA - Went to niece in California - Sold
2000 V70 SE NA - Sold
- abscate
- MVS Moderator
- Posts: 35267
- Joined: 17 February 2013
- Year and Model: 99: V70s S70s,05 V70
- Location: Port Jefferson Long Island NY
- Has thanked: 1497 times
- Been thanked: 3810 times
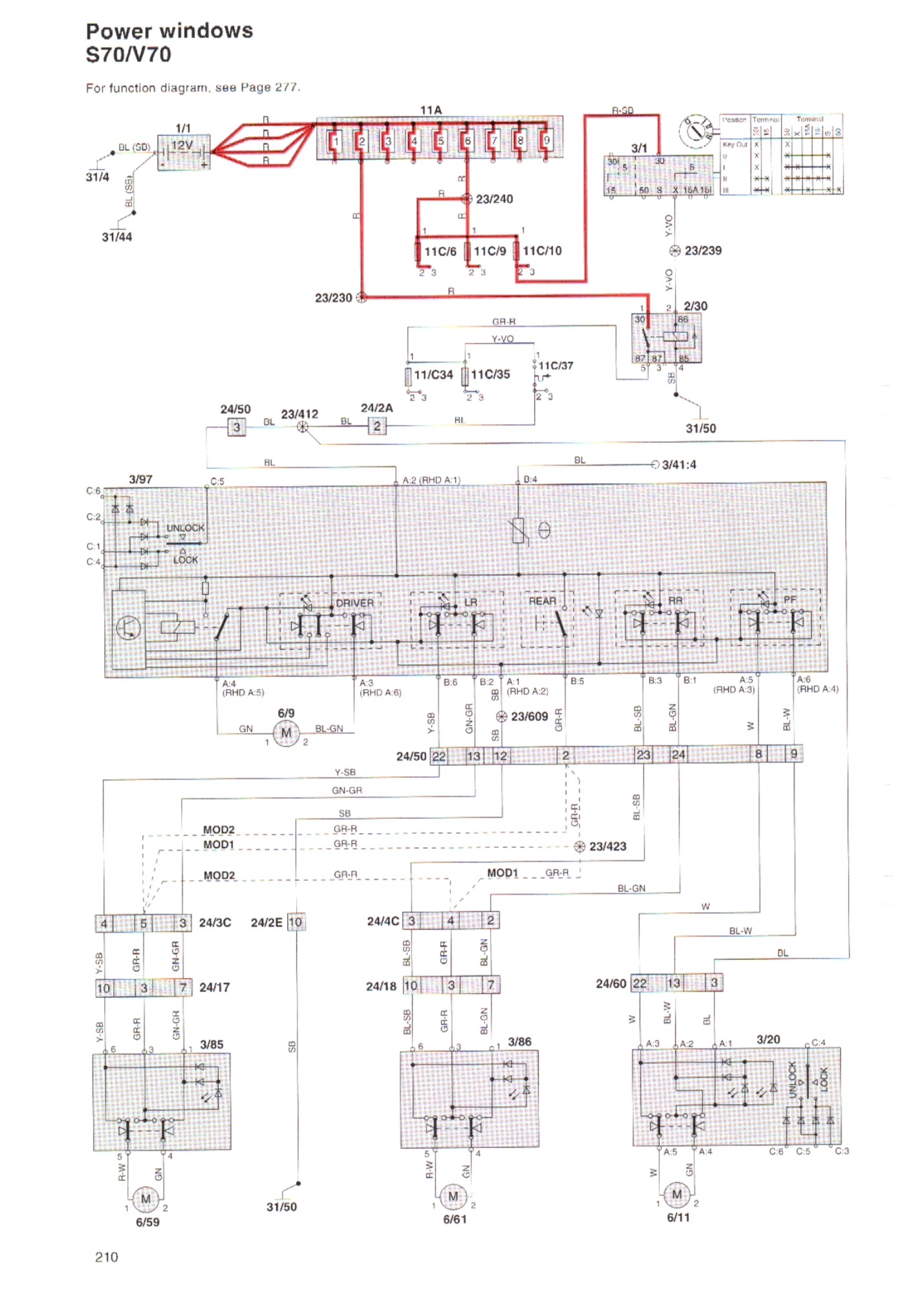
If you pop out the rear door window switch putting 12 volts onto Rw and green wires that go to pins 4,5 ( center two pins on the row of four spades) will direct connect to the motor
From VIDA
From VIDA
- Attachments
-
- 4A752506-EE68-41B8-9AC0-6FDE1C929924.jpeg (278.28 KiB) Viewed 422 times
-
- 95638CBD-617F-407B-A06E-9329CF7386E0.jpeg (218.53 KiB) Viewed 422 times
Empty Nester
A Captain in a Sea of Estrogen
1999-V70-T5M56 2005-V70-M56 1999-S70 VW T4 XC90-in-Red
Link to Maintenance record thread
A Captain in a Sea of Estrogen
1999-V70-T5M56 2005-V70-M56 1999-S70 VW T4 XC90-in-Red
Link to Maintenance record thread
- BEJinFbk
- Posts: 4067
- Joined: 5 January 2008
- Year and Model: '98 V70 R
- Location: Fairbanks, Alaska
- Has thanked: 93 times
- Been thanked: 146 times
The motor is connected directly to the local switch.
Unplug the switch and you have two leads direct to
the window motor. Here’s the diagram.
Unplug the switch and you have two leads direct to
the window motor. Here’s the diagram.
'98 V70 R - Well Equipped for Life Up North... 
-
scot850
- Posts: 14864
- Joined: 5 April 2010
- Year and Model: 2000 V70 R
- Location: Calgary, Alberta, Canada
- Has thanked: 1836 times
- Been thanked: 1709 times
Thanks guys, but you need to please dumb this down further for me as my brain cell absorbs the info!
SOOOO, if I disconnect the switch from the connector on the back, and hot wire pins 4 + 5 at the same time then I would be direct powering the motor. Assuming it is not the motor, then there is a chance to close the window.
So if I run a wire directly from the battery +ve side and bridge pins 4 + 5 that is all I need to do? From the diagrams you both have kindly added, as BJ says, there appears to be a direct power feed to pin #1. If that is correct to my understanding then jumping pin#1 to 4 + 5 should then close the door and the master switch should be out of the picture, is that correct?
As BJ says, if there is direct power to the rear switch, then the master switch should have no effect on operation assuming the override switch in not in the OFF position. Power must then go directly to the master switch or otherwise how does the OFF switch control the rear window switch on the rear door to prevent it opening?
I did try to see if switching the OFF/ON control made any difference and it did not. If that control wire is a broken wire then depending how it works would that kill power to the rear?
Thanks,
Neil.
SOOOO, if I disconnect the switch from the connector on the back, and hot wire pins 4 + 5 at the same time then I would be direct powering the motor. Assuming it is not the motor, then there is a chance to close the window.
So if I run a wire directly from the battery +ve side and bridge pins 4 + 5 that is all I need to do? From the diagrams you both have kindly added, as BJ says, there appears to be a direct power feed to pin #1. If that is correct to my understanding then jumping pin#1 to 4 + 5 should then close the door and the master switch should be out of the picture, is that correct?
As BJ says, if there is direct power to the rear switch, then the master switch should have no effect on operation assuming the override switch in not in the OFF position. Power must then go directly to the master switch or otherwise how does the OFF switch control the rear window switch on the rear door to prevent it opening?
I did try to see if switching the OFF/ON control made any difference and it did not. If that control wire is a broken wire then depending how it works would that kill power to the rear?
Thanks,
Neil.
2006 V70 2.5T AWD Polestar tune
2000 V70 R - still being an endless PITA
2006 XC70 - Our son now has this and still parked in our garage
2003 Toyota 4Runner V8 Limited
2015 Kia Sportage EX-L - Sold
1993 850 GLT -Sold
1998 V70 XC - Sold
1997 Volvo 850 SE NA - Went to niece in California - Sold
2000 V70 SE NA - Sold
2000 V70 R - still being an endless PITA
2006 XC70 - Our son now has this and still parked in our garage
2003 Toyota 4Runner V8 Limited
2015 Kia Sportage EX-L - Sold
1993 850 GLT -Sold
1998 V70 XC - Sold
1997 Volvo 850 SE NA - Went to niece in California - Sold
2000 V70 SE NA - Sold
- abscate
- MVS Moderator
- Posts: 35267
- Joined: 17 February 2013
- Year and Model: 99: V70s S70s,05 V70
- Location: Port Jefferson Long Island NY
- Has thanked: 1497 times
- Been thanked: 3810 times
You are going to ..
Pop up the window switch from the door
Pull the connector off the switch so it is loose from the switch, completely.
Now look at the fine print and find the number 4 and 5 terminals in the connector. It will be the middle two in the row of four, but confirm.
Then confirm again that the wires to these are one Red white, one green
YOur battery will connect direct to these two terminals, pos to one, negative to the other, The motor will run one direction, and you reverse the pos and neg to turn it in the other directiion.
Pop up the window switch from the door
Pull the connector off the switch so it is loose from the switch, completely.
Now look at the fine print and find the number 4 and 5 terminals in the connector. It will be the middle two in the row of four, but confirm.
Then confirm again that the wires to these are one Red white, one green
YOur battery will connect direct to these two terminals, pos to one, negative to the other, The motor will run one direction, and you reverse the pos and neg to turn it in the other directiion.
Empty Nester
A Captain in a Sea of Estrogen
1999-V70-T5M56 2005-V70-M56 1999-S70 VW T4 XC90-in-Red
Link to Maintenance record thread
A Captain in a Sea of Estrogen
1999-V70-T5M56 2005-V70-M56 1999-S70 VW T4 XC90-in-Red
Link to Maintenance record thread
-
scot850
- Posts: 14864
- Joined: 5 April 2010
- Year and Model: 2000 V70 R
- Location: Calgary, Alberta, Canada
- Has thanked: 1836 times
- Been thanked: 1709 times
Thanks for simplifying to my level abscate! That will by-pass the master switch totally. At least from this if I can get the window shut I can diagnose the issue later if required. I am helping the owner currently. Lovely family and he is very busy and has been out of town. He really appreciates the help as it is his Dad's car so doesn't want it scrapped, but to go to a good home. Still too much cost for me to justify. Needs brakes all around, timing belt and as it will be the 3rd, I have taken your info into account, but if mine I would replace the pump for piece of mind. Then needs all fluids, thermostat, plugs, possibly coils, and that is assuming replacing #1 cylinder coil gets all 5 cylinders running again! Then there are the cosmetics like the disintegrating door panels that need re-glued. Amazingly, no ABS light (yet)!
I have not even been under the car to check the 'oil' leaks purported from the engine and transmission. Needs an oil cap seal at least and not even tried the rubber glove yet!
Neil.
I have not even been under the car to check the 'oil' leaks purported from the engine and transmission. Needs an oil cap seal at least and not even tried the rubber glove yet!
Neil.
2006 V70 2.5T AWD Polestar tune
2000 V70 R - still being an endless PITA
2006 XC70 - Our son now has this and still parked in our garage
2003 Toyota 4Runner V8 Limited
2015 Kia Sportage EX-L - Sold
1993 850 GLT -Sold
1998 V70 XC - Sold
1997 Volvo 850 SE NA - Went to niece in California - Sold
2000 V70 SE NA - Sold
2000 V70 R - still being an endless PITA
2006 XC70 - Our son now has this and still parked in our garage
2003 Toyota 4Runner V8 Limited
2015 Kia Sportage EX-L - Sold
1993 850 GLT -Sold
1998 V70 XC - Sold
1997 Volvo 850 SE NA - Went to niece in California - Sold
2000 V70 SE NA - Sold
- BlackBart
- Posts: 6492
- Joined: 10 December 2016
- Year and Model: 2004 XC70 BlackBetty
- Location: Over the far far mountains
- Has thanked: 927 times
- Been thanked: 884 times
Just a contrary thought here, and maybe you’re way past this -
Is there any motor noise grinding in the door? Clicking? Could it be not the switch but a motor failure? (Rear windows don’t get the use the drivers would, but...)
Is there any motor noise grinding in the door? Clicking? Could it be not the switch but a motor failure? (Rear windows don’t get the use the drivers would, but...)
ex-1984 245T wagon
1994 850T5 wagon
2004 XC70 wagon BlackBetty
1994 850T5 wagon
2004 XC70 wagon BlackBetty
- MoVolvos
- Posts: 5270
- Joined: 15 January 2012
- Year and Model: S&V70XC,S60,C30,XC90
- Location: NC
- Has thanked: 310 times
- Been thanked: 524 times
A crude video but if all window regulators have just 2 pins from the motor... Trying to find time to replace the 03 Odyssey passenger regulator.
.
. .
Blessings,
BKM
2008 C30 T5 2.0 M66
2007 S60 2.5T - New Project
2003 S80 T6 Transmission DIED
2000 S70 SE Base - New Project
1998 S70 T5 Prior
1989 240 Wagon Prior
BKM
2008 C30 T5 2.0 M66
2007 S60 2.5T - New Project
2003 S80 T6 Transmission DIED
2000 S70 SE Base - New Project
1998 S70 T5 Prior
1989 240 Wagon Prior
-
scot850
- Posts: 14864
- Joined: 5 April 2010
- Year and Model: 2000 V70 R
- Location: Calgary, Alberta, Canada
- Has thanked: 1836 times
- Been thanked: 1709 times
Thanks guys for the replies.
Blackbart - There are absolutely no noises whatsoever, hence wanting to try a direct power to the window. The motor worked enough for the owners little guy to open it but then would not close. Now nothing from either front or rear door switch to the rear motor.
Mo Volvos - Thanks for the simplifying for me. Abscates note is also great as I now know which pins to operate. I don't like removing the door switch without removing the panel but already know the drivers' door panel has separated from many of the mounts as the 98-00 of this age are prone to do. Chances are the rear will do the same for me!
Neil.
Blackbart - There are absolutely no noises whatsoever, hence wanting to try a direct power to the window. The motor worked enough for the owners little guy to open it but then would not close. Now nothing from either front or rear door switch to the rear motor.
Mo Volvos - Thanks for the simplifying for me. Abscates note is also great as I now know which pins to operate. I don't like removing the door switch without removing the panel but already know the drivers' door panel has separated from many of the mounts as the 98-00 of this age are prone to do. Chances are the rear will do the same for me!
Neil.
2006 V70 2.5T AWD Polestar tune
2000 V70 R - still being an endless PITA
2006 XC70 - Our son now has this and still parked in our garage
2003 Toyota 4Runner V8 Limited
2015 Kia Sportage EX-L - Sold
1993 850 GLT -Sold
1998 V70 XC - Sold
1997 Volvo 850 SE NA - Went to niece in California - Sold
2000 V70 SE NA - Sold
2000 V70 R - still being an endless PITA
2006 XC70 - Our son now has this and still parked in our garage
2003 Toyota 4Runner V8 Limited
2015 Kia Sportage EX-L - Sold
1993 850 GLT -Sold
1998 V70 XC - Sold
1997 Volvo 850 SE NA - Went to niece in California - Sold
2000 V70 SE NA - Sold
- abscate
- MVS Moderator
- Posts: 35267
- Joined: 17 February 2013
- Year and Model: 99: V70s S70s,05 V70
- Location: Port Jefferson Long Island NY
- Has thanked: 1497 times
- Been thanked: 3810 times
A battery charger , especially a newer smart one, might not work as a DC supply. If you use a battery, a 10 amp fuse in the positive lead can stop a day going from good to bad.
Empty Nester
A Captain in a Sea of Estrogen
1999-V70-T5M56 2005-V70-M56 1999-S70 VW T4 XC90-in-Red
Link to Maintenance record thread
A Captain in a Sea of Estrogen
1999-V70-T5M56 2005-V70-M56 1999-S70 VW T4 XC90-in-Red
Link to Maintenance record thread
-
- Similar Topics
- Replies
- Views
- Last post
-
- 6 Replies
- 860 Views
-
Last post by volvolugnut
-
- 4 Replies
- 1198 Views
-
Last post by BlackBart






