While at the junkyard t'other weekend I obtained a pair of not-floppy sun visors from an S70 to replace the quite-floppy ones in my 850. As a bonus, the driver's visor has an embedded Homelink module.
Volvo considerately added 2-pin connectors for the sun visors with the S & V remodelling, which makes replacement much cleaner, so I also clipped and brought home the mating car-side connectors from the donor.
Now a conundrum: the wires attached to both the 850 and S70 visors are black (negative on my car) and red/black (positive). The mating car-side connectors from the donor car have a red wire and a black wire, which one would normally associate with positive for the red and negative for the black.
BUT, the red wire in the car-side connector mates with the black wire in the visor-side connector, and vice versa, making me wonder if Volvo had screwed up somehow in designing the Homelink visor and fixed it in the connectors. I checked a couple of S/V70s at the wreckers this last weekend and they were all the same: red car-side wire to black visor wire and black car-side wire to red/black visor wire. I tried to determine if one of the two car-side wires had a path to ground, but could not read continuity from either one to ground. The wreckers don't permit you to bring in a battery to hook up to their derelicts (good thing, too), so I couldn't measure the voltages directly.
Polarity doesn't matter to the vanity lights, obviously, but it probably does matter to the Homelink module, and I'd rather not just guess. Anyone out there encountered this before?
Voltage polarity for S70 sun visor with Homelink
-
SlowLane
- Posts: 56
- Joined: 15 September 2013
- Year and Model: 1996 855 Turbo
- Location: Livermore, CA
- Been thanked: 6 times
Voltage polarity for S70 sun visor with Homelink
Current Volvos:
2014 T6 XC70 - Turning into an expensive lesson.
2002 2.9 S80 - Wife's car, the "Silver Flash"
1996 855 Turbo - Formerly daughter's ride. My toy now.
Former Volvos:
1997 855 GLT - Totalled by daughter. Now she appreciates Volvos.
1984 244 DL B23F - warped head after radiator blew
1982 245 GL B21A - My first Volvo. Sold with 400,000 km on it.
Other:
1981 VW Westfalia - Californiated Canadian
2014 T6 XC70 - Turning into an expensive lesson.
2002 2.9 S80 - Wife's car, the "Silver Flash"
1996 855 Turbo - Formerly daughter's ride. My toy now.
Former Volvos:
1997 855 GLT - Totalled by daughter. Now she appreciates Volvos.
1984 244 DL B23F - warped head after radiator blew
1982 245 GL B21A - My first Volvo. Sold with 400,000 km on it.
Other:
1981 VW Westfalia - Californiated Canadian
- RickHaleParker
- Posts: 7129
- Joined: 25 May 2015
- Year and Model: See Signature below.
- Location: Kansas
- Has thanked: 8 times
- Been thanked: 958 times
Go back to the junkyard with an Ohm meter. Connect one lead to a chassis ground. With the other lead probe the wires. You will get continuity between the chassis ground and the ground wire. After that positive can be determined by process of elimination.
While your are in the junkyard, be sure to observe the position of the pins and wire colors in relation to the plastic connector.
Do the same with the 850.
While your are in the junkyard, be sure to observe the position of the pins and wire colors in relation to the plastic connector.
Do the same with the 850.
⸙⸙⸙⸙⸙⸙⸙⸙⸙⸙⸙⸙⸙⸙⸙⸙⸙⸙⸙⸙⸙⸙⸙⸙⸙⸙⸙⸙⸙⸙⸙⸙⸙⸙⸙⸙⸙⸙⸙⸙⸙⸙⸙⸙⸙⸙⸙⸙⸙⸙⸙⸙⸙⸙⸙⸙⸙⸙⸙⸙⸙⸙⸙⸙⸙⸙⸙⸙⸙⸙⸙⸙⸙
1998 C70, B5234T3, 16T, AW50-42, Bosch Motronic 4.4, Special Edition package.
2003 S40, B4204T3, 14T twin scroll AW55-50/51SN, Siemens EMS 2000.
2004 S60R, B8444S TF80 AWD. Yamaha V8 conversion
2005 XC90 T6 Executive, B6294T, 4T65 AWD, Bosch Motronic 7.0.
1998 C70, B5234T3, 16T, AW50-42, Bosch Motronic 4.4, Special Edition package.
2003 S40, B4204T3, 14T twin scroll AW55-50/51SN, Siemens EMS 2000.
2004 S60R, B8444S TF80 AWD. Yamaha V8 conversion
2005 XC90 T6 Executive, B6294T, 4T65 AWD, Bosch Motronic 7.0.
-
SlowLane
- Posts: 56
- Joined: 15 September 2013
- Year and Model: 1996 855 Turbo
- Location: Livermore, CA
- Been thanked: 6 times
I did exactly that, as I mentioned in my original post.RickHaleParker wrote: ↑24 Feb 2020, 11:58 Go back to the junkyard with an Ohm meter. Connect one lead to a chassis ground. With the other lead probe the wires. You will get continuity between the chassis ground and the ground wire. After that positive can be determined by process of elimination.
Neither of the connector terminals showed continuity to ground, but perhaps I didn't choose a good ground. I thought that the bare-metal center console frame bolted solidly to the car body would serve well enough. Silly me.I wrote:I tried to determine if one of the two car-side wires had a path to ground, but could not read continuity from either one to ground.
And again, I thought I made it pretty clear that I had "observed" the wire colors in relation to the connectors, on two separate cars, and that they followed the same pattern: red wire on the car-side connector mated to the black wire on the visor-side connector, and the black wire on the car-side connector mated to the red/black wire on the visor-side connector. The connectors are keyed to only mate in one orientation, of course.RickHaleParker wrote: While your are in the junkyard, be sure to observe the position of the pins and wire colors in relation to the plastic connector.
Last edited by SlowLane on 24 Feb 2020, 17:04, edited 1 time in total.
Current Volvos:
2014 T6 XC70 - Turning into an expensive lesson.
2002 2.9 S80 - Wife's car, the "Silver Flash"
1996 855 Turbo - Formerly daughter's ride. My toy now.
Former Volvos:
1997 855 GLT - Totalled by daughter. Now she appreciates Volvos.
1984 244 DL B23F - warped head after radiator blew
1982 245 GL B21A - My first Volvo. Sold with 400,000 km on it.
Other:
1981 VW Westfalia - Californiated Canadian
2014 T6 XC70 - Turning into an expensive lesson.
2002 2.9 S80 - Wife's car, the "Silver Flash"
1996 855 Turbo - Formerly daughter's ride. My toy now.
Former Volvos:
1997 855 GLT - Totalled by daughter. Now she appreciates Volvos.
1984 244 DL B23F - warped head after radiator blew
1982 245 GL B21A - My first Volvo. Sold with 400,000 km on it.
Other:
1981 VW Westfalia - Californiated Canadian
- RickHaleParker
- Posts: 7129
- Joined: 25 May 2015
- Year and Model: See Signature below.
- Location: Kansas
- Has thanked: 8 times
- Been thanked: 958 times
The Homelink IS chassis ground directly. I knew you got it wrong, tried to spare you the embarrassment.
How see if you can reason out the above.
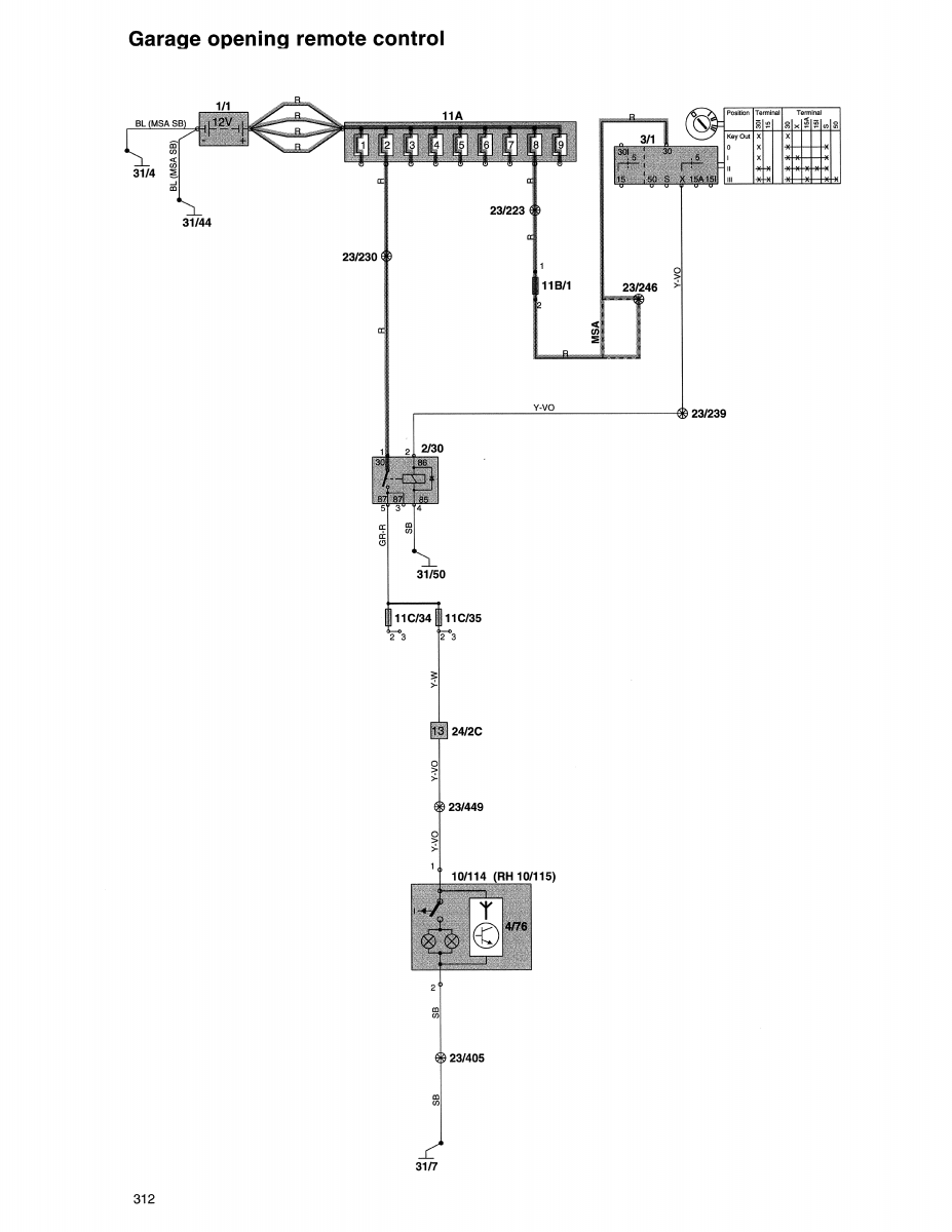
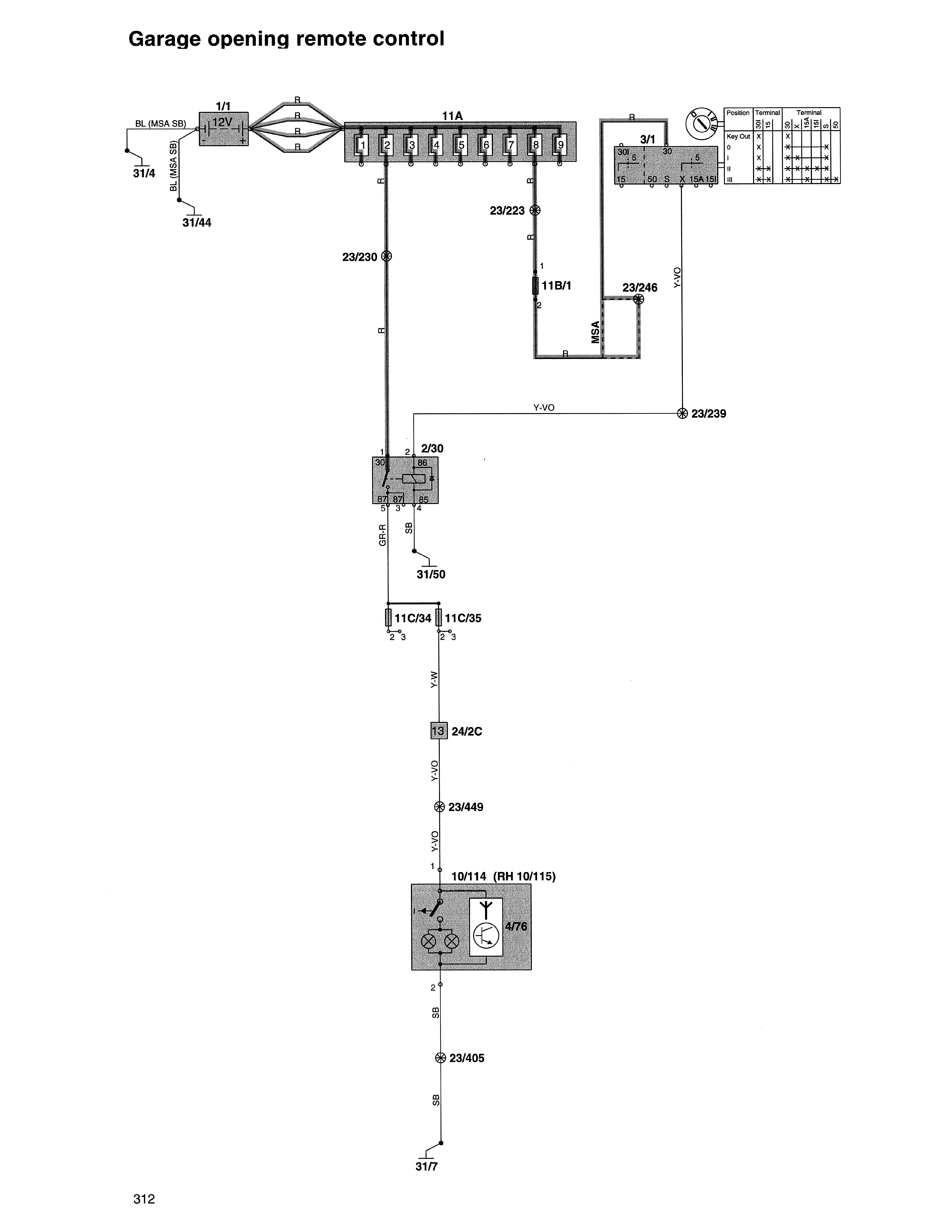
10/114 is the Homelink.
How see if you can reason out the above.
10/114 is the Homelink.
⸙⸙⸙⸙⸙⸙⸙⸙⸙⸙⸙⸙⸙⸙⸙⸙⸙⸙⸙⸙⸙⸙⸙⸙⸙⸙⸙⸙⸙⸙⸙⸙⸙⸙⸙⸙⸙⸙⸙⸙⸙⸙⸙⸙⸙⸙⸙⸙⸙⸙⸙⸙⸙⸙⸙⸙⸙⸙⸙⸙⸙⸙⸙⸙⸙⸙⸙⸙⸙⸙⸙⸙⸙
1998 C70, B5234T3, 16T, AW50-42, Bosch Motronic 4.4, Special Edition package.
2003 S40, B4204T3, 14T twin scroll AW55-50/51SN, Siemens EMS 2000.
2004 S60R, B8444S TF80 AWD. Yamaha V8 conversion
2005 XC90 T6 Executive, B6294T, 4T65 AWD, Bosch Motronic 7.0.
1998 C70, B5234T3, 16T, AW50-42, Bosch Motronic 4.4, Special Edition package.
2003 S40, B4204T3, 14T twin scroll AW55-50/51SN, Siemens EMS 2000.
2004 S60R, B8444S TF80 AWD. Yamaha V8 conversion
2005 XC90 T6 Executive, B6294T, 4T65 AWD, Bosch Motronic 7.0.
- BEJinFbk
- Posts: 4067
- Joined: 5 January 2008
- Year and Model: '98 V70 R
- Location: Fairbanks, Alaska
- Has thanked: 93 times
- Been thanked: 146 times
Here's the other page that goes with the wiring diagram above.
It looks like the hot lead is pin 1 on the visor. I hope this helps!
It looks like the hot lead is pin 1 on the visor. I hope this helps!
'98 V70 R - Well Equipped for Life Up North... 
-
SlowLane
- Posts: 56
- Joined: 15 September 2013
- Year and Model: 1996 855 Turbo
- Location: Livermore, CA
- Been thanked: 6 times
Thank you both. I think I got it from here.
The obvious difference is that the 850 doesn't run the power to the driver's visor through a key-controlled relay, but provides power to it full-time. I'll consider whether I want to go to the trouble of duplicating the S70 relay setup.
The obvious difference is that the 850 doesn't run the power to the driver's visor through a key-controlled relay, but provides power to it full-time. I'll consider whether I want to go to the trouble of duplicating the S70 relay setup.
Current Volvos:
2014 T6 XC70 - Turning into an expensive lesson.
2002 2.9 S80 - Wife's car, the "Silver Flash"
1996 855 Turbo - Formerly daughter's ride. My toy now.
Former Volvos:
1997 855 GLT - Totalled by daughter. Now she appreciates Volvos.
1984 244 DL B23F - warped head after radiator blew
1982 245 GL B21A - My first Volvo. Sold with 400,000 km on it.
Other:
1981 VW Westfalia - Californiated Canadian
2014 T6 XC70 - Turning into an expensive lesson.
2002 2.9 S80 - Wife's car, the "Silver Flash"
1996 855 Turbo - Formerly daughter's ride. My toy now.
Former Volvos:
1997 855 GLT - Totalled by daughter. Now she appreciates Volvos.
1984 244 DL B23F - warped head after radiator blew
1982 245 GL B21A - My first Volvo. Sold with 400,000 km on it.
Other:
1981 VW Westfalia - Californiated Canadian
- BEJinFbk
- Posts: 4067
- Joined: 5 January 2008
- Year and Model: '98 V70 R
- Location: Fairbanks, Alaska
- Has thanked: 93 times
- Been thanked: 146 times
It should draw nada at rest. Killing the battery
won’t be a problem, but I like the idea of securing
the remote in an unattanded car. I ran a line to
the accessory connector and picked up ign there.
Best of Luck!
won’t be a problem, but I like the idea of securing
the remote in an unattanded car. I ran a line to
the accessory connector and picked up ign there.
Best of Luck!
'98 V70 R - Well Equipped for Life Up North... 
- RickHaleParker
- Posts: 7129
- Joined: 25 May 2015
- Year and Model: See Signature below.
- Location: Kansas
- Has thanked: 8 times
- Been thanked: 958 times
The S70 relay is for security, a thief cannot get in your car and use the homelink to get in your home.SlowLane wrote: ↑25 Feb 2020, 11:20 Thank you both. I think I got it from here.
The obvious difference is that the 850 doesn't run the power to the driver's visor through a key-controlled relay, but provides power to it full-time. I'll consider whether I want to go to the trouble of duplicating the S70 relay setup.
You could reroute the postive to a switched +12V, instead of installing another relay.
⸙⸙⸙⸙⸙⸙⸙⸙⸙⸙⸙⸙⸙⸙⸙⸙⸙⸙⸙⸙⸙⸙⸙⸙⸙⸙⸙⸙⸙⸙⸙⸙⸙⸙⸙⸙⸙⸙⸙⸙⸙⸙⸙⸙⸙⸙⸙⸙⸙⸙⸙⸙⸙⸙⸙⸙⸙⸙⸙⸙⸙⸙⸙⸙⸙⸙⸙⸙⸙⸙⸙⸙⸙
1998 C70, B5234T3, 16T, AW50-42, Bosch Motronic 4.4, Special Edition package.
2003 S40, B4204T3, 14T twin scroll AW55-50/51SN, Siemens EMS 2000.
2004 S60R, B8444S TF80 AWD. Yamaha V8 conversion
2005 XC90 T6 Executive, B6294T, 4T65 AWD, Bosch Motronic 7.0.
1998 C70, B5234T3, 16T, AW50-42, Bosch Motronic 4.4, Special Edition package.
2003 S40, B4204T3, 14T twin scroll AW55-50/51SN, Siemens EMS 2000.
2004 S60R, B8444S TF80 AWD. Yamaha V8 conversion
2005 XC90 T6 Executive, B6294T, 4T65 AWD, Bosch Motronic 7.0.
-
SlowLane
- Posts: 56
- Joined: 15 September 2013
- Year and Model: 1996 855 Turbo
- Location: Livermore, CA
- Been thanked: 6 times
Yes, that's pretty much what I was thinking of doing. Leveraging an existing switched source.RickHaleParker wrote: ↑25 Feb 2020, 13:13 The S70 relay is for security, a thief cannot get in your car and use the homelink to get in your home.
You could reroute the postive to a switched +12V, instead of installing another relay.
Funny though, the Homelink in my S80 works fine without needing the key, so it seems that Volvo vacillated on the security issue. Doesn't matter. The S80 lives in the garage. The 850 is out in the elements.
Current Volvos:
2014 T6 XC70 - Turning into an expensive lesson.
2002 2.9 S80 - Wife's car, the "Silver Flash"
1996 855 Turbo - Formerly daughter's ride. My toy now.
Former Volvos:
1997 855 GLT - Totalled by daughter. Now she appreciates Volvos.
1984 244 DL B23F - warped head after radiator blew
1982 245 GL B21A - My first Volvo. Sold with 400,000 km on it.
Other:
1981 VW Westfalia - Californiated Canadian
2014 T6 XC70 - Turning into an expensive lesson.
2002 2.9 S80 - Wife's car, the "Silver Flash"
1996 855 Turbo - Formerly daughter's ride. My toy now.
Former Volvos:
1997 855 GLT - Totalled by daughter. Now she appreciates Volvos.
1984 244 DL B23F - warped head after radiator blew
1982 245 GL B21A - My first Volvo. Sold with 400,000 km on it.
Other:
1981 VW Westfalia - Californiated Canadian
- BEJinFbk
- Posts: 4067
- Joined: 5 January 2008
- Year and Model: '98 V70 R
- Location: Fairbanks, Alaska
- Has thanked: 93 times
- Been thanked: 146 times
There’s a factory power point for accessories clipped to
the steering column that gives you access to a number of
different feeds. Just for aftermarket gadgets. Very thoughtful.
There are plenty of posts about it here. If no one
beats me to it, I’ll throw up some info this evening.
the steering column that gives you access to a number of
different feeds. Just for aftermarket gadgets. Very thoughtful.
There are plenty of posts about it here. If no one
beats me to it, I’ll throw up some info this evening.
'98 V70 R - Well Equipped for Life Up North... 
-
- Similar Topics
- Replies
- Views
- Last post






