Login Register

1998 v70 Accessory Connector 24/35 under dash (with pin outs)

Help, Advice and DIY Tutorials on Volvo's P80 platform cars -- Volvo's 1990s "bread and butter" cars -- powered by the ubiquitous and durable Volvo inline 5-cylinder engine.

1992 - 1997 850, including 850 R, 850 T-5R, 850 T-5, 850 GLT
1997 - 2000 S70, S70 AWD
1997 - 2000 V70, V70 AWD
1997 - 2000 V70-XC
1997 - 2004 C70

Post Reply
Ben850
Posts: 1613
Joined: 8 September 2011
Year and Model: 1996 850 R Wagon
Location: Michigan
Been thanked: 7 times

Re: 1998 v70 Can Not Find Accessory Connector

Post by Ben850 »

Ben850 wrote:If you mean the OBD II connection, it is under the arrest in the console. there is a small plastic cover that pulls off. It says OBD II.
Oh, the yellow one by the relays.
Kidding, I had OBD on my mind because they had moved it from under the ash tray, coin collector in '98, to the arm rest compartment.
Now you know where that is as well.

-P.
1993 850 GLT , You wouldn't know it.
1996 850 Turbo Wagon White.
1995 T-5R Black. New work in progress.
1998 V70 XC Cross Country White.
1994 850 N/A Wagon Black.
1997 850 Sedan Black.
1996 850R Wagon White.
1997 850 Sedan Red ( not white or black!)

User avatar
abscate
MVS Moderator
Posts: 35282
Joined: 17 February 2013
Year and Model: 99: V70s S70s,05 V70
Location: Port Jefferson Long Island NY
Has thanked: 1500 times
Been thanked: 3812 times

Post by abscate »

erikv11 wrote: 23 Apr 2015, 12:11 I concur. Driver's side, attached by a clip to the main connector block, closer to the outside of the car, like directly underneath the temperature gauge in the dash. Sometimes it is tucked away somewhere.

image1.JPG
image2.JPG
image3.JPG
Im tapping into this for Abbys car and need some help

My B+ line is dead - Im wondering if I need to insert a fuse somewhere to light this one up?

Also - did anyone source the male pins for these so you can use the nice blank connector they give you already attached?

Project - rewiring the 12 VDC plugs to B+ rather than TERM 30 - so charging stuff works without key.
On edit….terminal 30 always hot, terminal 15 switched by key


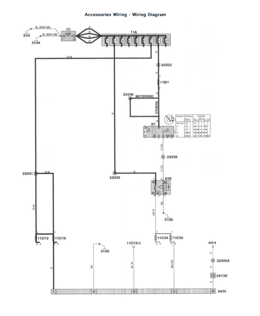
Finally found reference for this puppy
Connector 24/35 in Alldata - Connector , 8 pin, Accessories

24/35
1 30-supply
2 X Supply
3 High beam
6 Rheostat, variable supply
8 Ground terminal
Attachments
Yellow Accessory Plug Under Dash
Yellow Accessory Plug Under Dash
Screen Shot 2019-05-02 at 9.03.28 PM.png (185.23 KiB) Viewed 970 times
Empty Nester
A Captain in a Sea of Estrogen
1999-V70-T5M56 2005-V70-M56 1999-S70 VW T4 XC90-in-Red
Link to Maintenance record thread

User avatar
BEJinFbk
Posts: 4067
Joined: 5 January 2008
Year and Model: '98 V70 R
Location: Fairbanks, Alaska
Has thanked: 93 times
Been thanked: 146 times

Post by BEJinFbk »

Have you chased power through Big fuse 7 and little fuse 16?
Those look like the only ones in the supply circuit.

As far as the pins, I think that Volvo uses the same style all
over the car. I suspect that you could grab a few populated
connectors at the JY, cut the leads long and release some
pigtails to retask for all of your accessory connector needs.

Please post back if they fit correctly. Good Parts Hunting!
'98 V70 R - Well Equipped for Life Up North... ;)

yanga001
Posts: 787
Joined: 24 March 2019
Year and Model: 98/99/00 v/s70’s
Location: Ontario
Has thanked: 59 times
Been thanked: 110 times

Post by yanga001 »

Adding 2 cents a few years down as i ran into a similar project and wanted to post my solution. Photos of installation to follow.

I had a 300W inverter which i wanted to wire into the car, however i did not want to do it out of the cigarette ports as the plug would stick out. I had installed the map holder on the passenger side of my 98 v70 (had to throw away the knee bolster) and was planning on mounting the inverter under there. The goal was to get a high amperage fused line to the inverter as i also didnt want to blow fuses while charging a laptop, using a spotlight, or charging other equipment. Therefore, the plan was to tap the Red 30 Amp fused connector and switch it with a J relay rated for 40 amps. In my case the switching signal would be the brown orange wire which links to the ignition as it would turn on the inverter with the key. I know my brain and i would forget to turn off the inverter and be stuck with a dead battery so this was optimal. However, if you wanted to hook up running lights or something to that effect then the wiring would be the same, except you would run it out through the firewall and to the engine.

Diagram to follow once project is done.
1998 S70 N/A Auto (Parts car)(planned to be harvested)
1998 V70 N/A Auto New full restoration project (Water pump thrown at 404K Km)
1998 V70 N/A Auto (Workhorse) (Tree to driver B pillar :( )
1999 S70 T5 Auto(Project) (planned to be fixed)
2000 S70 SE M Learning platform (planned to be driven one day)
2008 S60 2.5T Auto (Sold)
2012 Honda Pilot AWD Touring (Daily)

User avatar
abscate
MVS Moderator
Posts: 35282
Joined: 17 February 2013
Year and Model: 99: V70s S70s,05 V70
Location: Port Jefferson Long Island NY
Has thanked: 1500 times
Been thanked: 3812 times

Post by abscate »

You will be running 30-40 amps at rated load fir that inverter. That might exceed the wire capacity there, that’s really a lot of current.

Fixed incorrect terminal info above
Empty Nester
A Captain in a Sea of Estrogen
1999-V70-T5M56 2005-V70-M56 1999-S70 VW T4 XC90-in-Red
Link to Maintenance record thread

User avatar
MrAl
Posts: 1700
Joined: 8 April 2015
Year and Model: v70, 1998
Location: New Jersey
Has thanked: 83 times
Been thanked: 73 times

Post by MrAl »

Hi,

Yes and i seriously doubt you could ever get 30 amps out of the cigar lighter port that's probably weyy over the rating for 30 amps.
A 300 watt inverter at 80 percent efficiency would draw 31.25 amps at 12 volts (engine off). For 30 amps the normal wire gauge would be 10 AWG but because it's such a short run you may get away with #12 AWG but check voltage at the input of the inverter at full load unless you plan to always use it at a lower output load like 100 watts or 200 watts, etc.

When i worked in the industry i was involved in the design and testing of these things. We made synthesized sine wave output converters of various input and output voltages single phase and three phase. Power levels normally from about 500 watts to 30000 watts with cabinet sizes as big as some clothes closets. The sine output was very clean around 1 percent THD and latest model i worked got up to 90 percent efficiency at full load. We also did solar converters Sandia Labs ordered a whole bunch to do some real world testing on the effects on line harmonics. That was way back in the day mid 1980's. Today converters are very popular and widespread and also much cheaper. The ones we did cost thousands of dollars for one.

I also must have missed some of the posts in this thread somehow i'll have to go back and read some more.
I’ve been driving a Volvo long before anyone ever paid me to drive one.
That's probably because I've been driving one since 2015 and nobody has offered to pay me yet.
1998 v70, non turbo, FWD, base model, on the road from April 2nd, 2015 to July 26, 2023.

User avatar
abscate
MVS Moderator
Posts: 35282
Joined: 17 February 2013
Year and Model: 99: V70s S70s,05 V70
Location: Port Jefferson Long Island NY
Has thanked: 1500 times
Been thanked: 3812 times

Post by abscate »

I don’t know how we got inverted, no one alerted.. us
Empty Nester
A Captain in a Sea of Estrogen
1999-V70-T5M56 2005-V70-M56 1999-S70 VW T4 XC90-in-Red
Link to Maintenance record thread

User avatar
MrAl
Posts: 1700
Joined: 8 April 2015
Year and Model: v70, 1998
Location: New Jersey
Has thanked: 83 times
Been thanked: 73 times

Post by MrAl »

abscate wrote: 27 Jun 2022, 05:55 I don’t know how we got inverted, no one alerted.. us
Hi,

If you mean talking about an inverter then i think it is because many topics are closely related to other topics so it becomes a little hard to distinguish which category they each fall under. I've had tihs problem even just trying to figure out what computer folder to put certain things under when they should really be put under both. I guess that means that a hierarchical type organization of items is not that great because some items will belong under two headings not just one alone. I used to think that was the ultimate form of organization but when i started to accumulate millions of files it started to become obvious that some things even maybe a lot of things had to be cross associated with each other even though they may be down in different levels in the original catalog structure.
A simple but maybe stupid example is, say you have a lot of coils of wire you use for installing electrical things in cars like radios or inverters/converters, etc. You have AWG wire sizes 6,8,10, 12, 14, and 16 on rolls of maybe 100 feet each, and for some of these lets say 8 and 12 you have two different color insulation on them say black and red. Now you go to list them in some program or something. You know sometimes you need wire size 6, sometimes 10, etc., but also know that it is good to use certain color coding for different polarities red and black. Now sometimes it is more important to get the color right, so you would want to look through the 'red' list, but other times under the 'black' list, but other times it is most important to get the wire size right so you look under wire size 10. But that's two different lists that contain the same information. Wire size 10 will appear under the wire size list and also under the 'red' list (perhaps). So it's hard to put those into a hierarchic structured list.
In this simpler case though you might have two lists, red and black, then list the wire sizes you have for each color under the right color heading. That probably works ok for this example, unless you want to look by size first. But even if you just want to look by color first, you may find some time in the future that you have to have another category called maybe "cigar lighter wires" and so now what. You somehow have to be able to list some of those same wires sizes and colors (maybe just red though) in under still yet another heading.
I suspect this is why virtual directories were invented, so items could appear in many lists but not have to take up 10 times the storage space.

So when something seems a little off topic it could just be that the topics are so closely related that they really need to be cross referenced to each other. If they are not, then a person looking in list 1 may never realize that something they need appears in list 2.

If we look at some "Help" files we can find one way this was handled. The programs include a way to jump to a related term by underlining it similar to a 'link' on the web. Wikipedia does this a lot too by linking to related terms that appear in the documents.
Sometimes you will see, "See Also ... such and such", so the reader can see other stuff that relates to the current entry.

I hope i explained this right :-)
I’ve been driving a Volvo long before anyone ever paid me to drive one.
That's probably because I've been driving one since 2015 and nobody has offered to pay me yet.
1998 v70, non turbo, FWD, base model, on the road from April 2nd, 2015 to July 26, 2023.

yanga001
Posts: 787
Joined: 24 March 2019
Year and Model: 98/99/00 v/s70’s
Location: Ontario
Has thanked: 59 times
Been thanked: 110 times

Post by yanga001 »

abscate wrote: 26 Jun 2022, 03:08 You will be running 30-40 amps at rated load fir that inverter. That might exceed the wire capacity there, that’s really a lot of current.

Fixed incorrect terminal info above
Yup, that was part of the reason i used the accessory connector for its 30 supply. I switch it through a relay with the brown orange so i dont forget it on. It all was wired up and works well!
1998 S70 N/A Auto (Parts car)(planned to be harvested)
1998 V70 N/A Auto New full restoration project (Water pump thrown at 404K Km)
1998 V70 N/A Auto (Workhorse) (Tree to driver B pillar :( )
1999 S70 T5 Auto(Project) (planned to be fixed)
2000 S70 SE M Learning platform (planned to be driven one day)
2008 S60 2.5T Auto (Sold)
2012 Honda Pilot AWD Touring (Daily)

User avatar
abscate
MVS Moderator
Posts: 35282
Joined: 17 February 2013
Year and Model: 99: V70s S70s,05 V70
Location: Port Jefferson Long Island NY
Has thanked: 1500 times
Been thanked: 3812 times

Post by abscate »

Mr Al… I was just singing a song by the …..
Attachments
E6FAFA48-D32A-427A-BE2D-E0134E81EAC3.jpeg
E6FAFA48-D32A-427A-BE2D-E0134E81EAC3.jpeg (430.41 KiB) Viewed 550 times
AE03579B-1F56-4F05-908B-C2E6D83995BF.jpeg
AE03579B-1F56-4F05-908B-C2E6D83995BF.jpeg (687.97 KiB) Viewed 550 times
Empty Nester
A Captain in a Sea of Estrogen
1999-V70-T5M56 2005-V70-M56 1999-S70 VW T4 XC90-in-Red
Link to Maintenance record thread

Post Reply
  • Similar Topics
    Replies
    Views
    Last post