My 2008 XC70 blower died suddenly. I have a Delphi knockoff reader that I was able to read the Climate Control Unit with:
Compartment Temperature 23°C
Control Unit Power Supply 12.0V (I assume this is the Climate Control Unit)
Fan Requested 41.73% (reacts to knob)
Left Temperature Selector 21°C (reacts)
Right Temperature Selector 23°C (reacts)
Fan Control Voltage 0.00V
I suspect the issue is either the blower regulator (no longer simply a resistor) or the blower fuse, both of which are difficult to access.
The fuse (#11 in the engine compartment) is on the lower fuse level. It is not readily apparent how to remove the upper fuse tray to get at the lower portion.
The blower regulator is up against the firewall. I can touch it but trying to remove the connector or twist the regulator is nearlt impossible even with the gas pedal removed. The diagram is in the second to last post of this thread:
viewtopic.php?t=62130
Image:
download/file.php?id=29406
Can anyone offer some suggestions?
2008 XC70 Blower
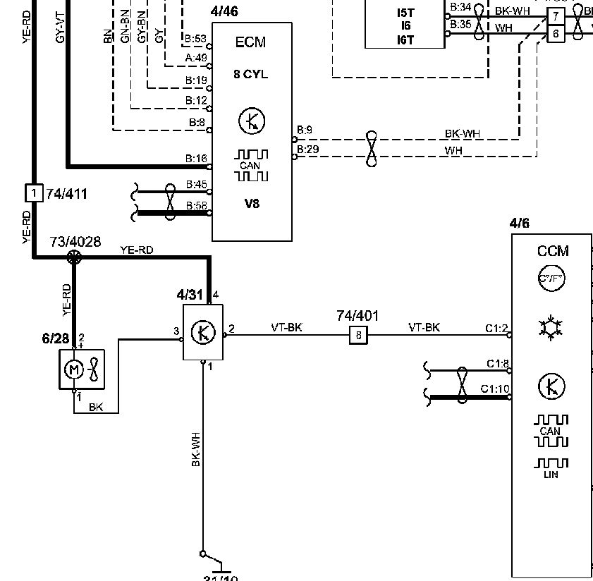
I FINALLY was able to get the stupid connector off the regulator. It is a 4 pin connector with latches that have barbs on the end. I couldn't push both latches and pull the connector - I think I finally had success pressing one latch (top?) and backing one side out and then the other. According to the ALL Data schematic (in the attachment), it looks like:
where 4/31 is the regulator and:
pin 1 GND
pin 2 PWM signal from Climate Control
pin 3 blower low side
pin 4 Fused 12 VDC (from Fuse 11)
I measured 12.17 V from pin 4 to pin 1 so fuse 11 is good. I would still like to know how to get at the lower level of the engine fuse compartment though. I jumpered from pin 3 to pin 1 for about 5 seconds and the blower ran. But the jumper got hot quick. So the immediate issue is the regulator is toast. The blower could also be drawing too much current but I won't know unless I replace it and smoke it.
So:
#1 Can anyone suggest how to turn the regulator and remove?
#2 Anyone ever get at the lower fuse level for future reference?
-Thanks-
where 4/31 is the regulator and:
pin 1 GND
pin 2 PWM signal from Climate Control
pin 3 blower low side
pin 4 Fused 12 VDC (from Fuse 11)
I measured 12.17 V from pin 4 to pin 1 so fuse 11 is good. I would still like to know how to get at the lower level of the engine fuse compartment though. I jumpered from pin 3 to pin 1 for about 5 seconds and the blower ran. But the jumper got hot quick. So the immediate issue is the regulator is toast. The blower could also be drawing too much current but I won't know unless I replace it and smoke it.
So:
#1 Can anyone suggest how to turn the regulator and remove?
#2 Anyone ever get at the lower fuse level for future reference?
-Thanks-
Last edited by TheEngler on 18 Mar 2018, 15:54, edited 1 time in total.
- abscate
- MVS Moderator
- Posts: 35311
- Joined: 17 February 2013
- Year and Model: 99: V70s S70s,05 V70
- Location: Port Jefferson Long Island NY
- Has thanked: 1506 times
- Been thanked: 3821 times
You still don't know if your regulator 4/31is bad or if the CCM is not sending the fan signal to the regulator.
How thick was the wire you jumped term 3-1 with? If it was thin, it will get hot - fans will pull 4-8 amps which is a lot of current.
Where are you in NY? PM me and Ill see if we have someone nearby with a good ammeter who can measure that current for you.
How thick was the wire you jumped term 3-1 with? If it was thin, it will get hot - fans will pull 4-8 amps which is a lot of current.
Where are you in NY? PM me and Ill see if we have someone nearby with a good ammeter who can measure that current for you.
Empty Nester
A Captain in a Sea of Estrogen
1999-V70-T5M56 2005-V70-M56 1999-S70 VW T4 XC90-in-Red
Link to Maintenance record thread
A Captain in a Sea of Estrogen
1999-V70-T5M56 2005-V70-M56 1999-S70 VW T4 XC90-in-Red
Link to Maintenance record thread
abscate-
Thanks for the reply. No I did not check the voltage on the PWM pin to see if it varied with setting as I was rushing to get things cleaned up before dark. A DMM will average out the pulses from the CCM and show different DC levels for the different fan speed settings. I will check that voltage quickly before ordering the regulator.
As to the current, I was using a steel 'pick stick'. Steel does not conduct as well as copper. I just looked up the particulars and it is about 10x the resistance for carbon steel and >40x for stainless steel (which is what I suspect it is). The stick was about 1mm in diameter which equates to ~18 AWG wire. The fuse in the engine compartment for the blower is 40A which would equate to 8 AWG wire which has roughly 10 times the area and IS made of copper. My Fluke DMM is only good for 10 amps as it is a shunt ammeter. Thanks for the offer but I am halfway out on LI and can grab a clamp ammeter good to hundreds of amps from work. I was only commenting as to how QUICKLY it got HOT. Since the resistance is 100x to 400x (resistance x area) greater, it is apparent as to why.
Thanks for the reply. No I did not check the voltage on the PWM pin to see if it varied with setting as I was rushing to get things cleaned up before dark. A DMM will average out the pulses from the CCM and show different DC levels for the different fan speed settings. I will check that voltage quickly before ordering the regulator.
As to the current, I was using a steel 'pick stick'. Steel does not conduct as well as copper. I just looked up the particulars and it is about 10x the resistance for carbon steel and >40x for stainless steel (which is what I suspect it is). The stick was about 1mm in diameter which equates to ~18 AWG wire. The fuse in the engine compartment for the blower is 40A which would equate to 8 AWG wire which has roughly 10 times the area and IS made of copper. My Fluke DMM is only good for 10 amps as it is a shunt ammeter. Thanks for the offer but I am halfway out on LI and can grab a clamp ammeter good to hundreds of amps from work. I was only commenting as to how QUICKLY it got HOT. Since the resistance is 100x to 400x (resistance x area) greater, it is apparent as to why.
- oragex
- Posts: 5347
- Joined: 24 May 2013
- Year and Model: S60 2003
- Location: Canada
- Has thanked: 102 times
- Been thanked: 352 times
- Contact:
Try searching on Youtube, some russian guy had to replace his blower on XC70 P3
Several Volvo Repair Videos https://www.youtube.com/playlist?list=P ... s0FSVSOT_c
- oragex
- Posts: 5347
- Joined: 24 May 2013
- Year and Model: S60 2003
- Location: Canada
- Has thanked: 102 times
- Been thanked: 352 times
- Contact:
Indeed. And after googling about it, seems quite common with low miles and recurrent
Several Volvo Repair Videos https://www.youtube.com/playlist?list=P ... s0FSVSOT_c
-
- Similar Topics
- Replies
- Views
- Last post
-
- 0 Replies
- 1680 Views
-
Last post by jacklyn51
-
- 0 Replies
- 1363 Views
-
Last post by mcbrightful






