Warmed up the 2005 for five minutes, then drove to a breakfast meeting. Temp gauge reached about 1/3 up the way, so car did not reach full operating temperature
One hour later, no start.
Ambient temp last night 10F, morning 22F
Cranks well, sputters, but does not catch.
My symptoms point to water in fuel (much rarer than proposed), bad coil, bad ECT
Get a lift home, return with tools. Add 1 bottle HEET to tank (half full), take about 5 minutes to get hood up due to ice.
Car then starts, high idles, and runs great.
Will monitor and report back.
I will measure ECT resistance in warmer weather to check this.
2005 V70NAM56 No start condition, prelim diagnosis 30742823 Topic is solved
- abscate
- MVS Moderator
- Posts: 35302
- Joined: 17 February 2013
- Year and Model: 99: V70s S70s,05 V70
- Location: Port Jefferson Long Island NY
- Has thanked: 1505 times
- Been thanked: 3818 times
2005 V70NAM56 No start condition, prelim diagnosis 30742823
Empty Nester
A Captain in a Sea of Estrogen
1999-V70-T5M56 2005-V70-M56 1999-S70 VW T4 XC90-in-Red
Link to Maintenance record thread
A Captain in a Sea of Estrogen
1999-V70-T5M56 2005-V70-M56 1999-S70 VW T4 XC90-in-Red
Link to Maintenance record thread
- abscate
- MVS Moderator
- Posts: 35302
- Joined: 17 February 2013
- Year and Model: 99: V70s S70s,05 V70
- Location: Port Jefferson Long Island NY
- Has thanked: 1505 times
- Been thanked: 3818 times
Drove it home, then tried restart.
Cranks well, no start.
Scored on the first diagnostic - no fuel pressure at rail 0 psi.
Ill be diving into the fuse, fuel pump relay, fuel pump, PEM system to find root.
>> I can't emphasize enough how getting the right diagnostic tool saves time. I could have spent 2 hours pulling plugs, checking coils, immobiliser, etc...but the fuel gauge took 3 minutes and took me right to the problem.
Cranks well, no start.
Scored on the first diagnostic - no fuel pressure at rail 0 psi.
Ill be diving into the fuse, fuel pump relay, fuel pump, PEM system to find root.
>> I can't emphasize enough how getting the right diagnostic tool saves time. I could have spent 2 hours pulling plugs, checking coils, immobiliser, etc...but the fuel gauge took 3 minutes and took me right to the problem.
Empty Nester
A Captain in a Sea of Estrogen
1999-V70-T5M56 2005-V70-M56 1999-S70 VW T4 XC90-in-Red
Link to Maintenance record thread
A Captain in a Sea of Estrogen
1999-V70-T5M56 2005-V70-M56 1999-S70 VW T4 XC90-in-Red
Link to Maintenance record thread
- abscate
- MVS Moderator
- Posts: 35302
- Joined: 17 February 2013
- Year and Model: 99: V70s S70s,05 V70
- Location: Port Jefferson Long Island NY
- Has thanked: 1505 times
- Been thanked: 3818 times
Hmmm, releasing top of fuse box isn't intuitive and VIDA directions suck
Anyone got pointers?
Anyone got pointers?
Empty Nester
A Captain in a Sea of Estrogen
1999-V70-T5M56 2005-V70-M56 1999-S70 VW T4 XC90-in-Red
Link to Maintenance record thread
A Captain in a Sea of Estrogen
1999-V70-T5M56 2005-V70-M56 1999-S70 VW T4 XC90-in-Red
Link to Maintenance record thread
- jonesg
- Posts: 3507
- Joined: 16 January 2008
- Year and Model: 2004 V70
- Location: Northern maine.
- Has thanked: 69 times
- Been thanked: 481 times
Had my cover off many times. It always comes off easy, pull tabs in and pull lid up.
Maybe you need a small screwdriver, freezing cold hard rigid plastic and no heated garage.
- abscate
- MVS Moderator
- Posts: 35302
- Joined: 17 February 2013
- Year and Model: 99: V70s S70s,05 V70
- Location: Port Jefferson Long Island NY
- Has thanked: 1505 times
- Been thanked: 3818 times
Top came off fine, I'm trying to release upper layer of fuse box to access fuel pump relay below.
My bad writing comprehension.
I think I have to release positive power bus nuts, my Alldata direction aren't very well written
My bad writing comprehension.
I think I have to release positive power bus nuts, my Alldata direction aren't very well written
Empty Nester
A Captain in a Sea of Estrogen
1999-V70-T5M56 2005-V70-M56 1999-S70 VW T4 XC90-in-Red
Link to Maintenance record thread
A Captain in a Sea of Estrogen
1999-V70-T5M56 2005-V70-M56 1999-S70 VW T4 XC90-in-Red
Link to Maintenance record thread
- RickHaleParker
- Posts: 7129
- Joined: 25 May 2015
- Year and Model: See Signature below.
- Location: Kansas
- Has thanked: 8 times
- Been thanked: 958 times
Hmmm, releasing top of fuse box isn't intuitive and VIDA directions suck
Anyone got pointers?
You right the directions read like they where written by Microsoft Information.
From what I'm reading, you go up under the drivers side dash to get to the Fuel Pump Relay.
Anyone got pointers?
You right the directions read like they where written by Microsoft Information.
From what I'm reading, you go up under the drivers side dash to get to the Fuel Pump Relay.
⸙⸙⸙⸙⸙⸙⸙⸙⸙⸙⸙⸙⸙⸙⸙⸙⸙⸙⸙⸙⸙⸙⸙⸙⸙⸙⸙⸙⸙⸙⸙⸙⸙⸙⸙⸙⸙⸙⸙⸙⸙⸙⸙⸙⸙⸙⸙⸙⸙⸙⸙⸙⸙⸙⸙⸙⸙⸙⸙⸙⸙⸙⸙⸙⸙⸙⸙⸙⸙⸙⸙⸙⸙
1998 C70, B5234T3, 16T, AW50-42, Bosch Motronic 4.4, Special Edition package.
2003 S40, B4204T3, 14T twin scroll AW55-50/51SN, Siemens EMS 2000.
2004 S60R, B8444S TF80 AWD. Yamaha V8 conversion
2005 XC90 T6 Executive, B6294T, 4T65 AWD, Bosch Motronic 7.0.
1998 C70, B5234T3, 16T, AW50-42, Bosch Motronic 4.4, Special Edition package.
2003 S40, B4204T3, 14T twin scroll AW55-50/51SN, Siemens EMS 2000.
2004 S60R, B8444S TF80 AWD. Yamaha V8 conversion
2005 XC90 T6 Executive, B6294T, 4T65 AWD, Bosch Motronic 7.0.
- abscate
- MVS Moderator
- Posts: 35302
- Joined: 17 February 2013
- Year and Model: 99: V70s S70s,05 V70
- Location: Port Jefferson Long Island NY
- Has thanked: 1505 times
- Been thanked: 3818 times
Got the fuse box lid off to access FM2, fuel pump relay 40A
Its 5 torx screws and also release main 12V feed (M8 nut, two fat red wires)
Of course, battery disconnected first (NEGATIVE, then POSITIVE) before messing with this.
40A fuse tested ok.
Glad it wasnt just me on those directions...WTF?
Its 5 torx screws and also release main 12V feed (M8 nut, two fat red wires)
Of course, battery disconnected first (NEGATIVE, then POSITIVE) before messing with this.
40A fuse tested ok.
Glad it wasnt just me on those directions...WTF?
Empty Nester
A Captain in a Sea of Estrogen
1999-V70-T5M56 2005-V70-M56 1999-S70 VW T4 XC90-in-Red
Link to Maintenance record thread
A Captain in a Sea of Estrogen
1999-V70-T5M56 2005-V70-M56 1999-S70 VW T4 XC90-in-Red
Link to Maintenance record thread
- abscate
- MVS Moderator
- Posts: 35302
- Joined: 17 February 2013
- Year and Model: 99: V70s S70s,05 V70
- Location: Port Jefferson Long Island NY
- Has thanked: 1505 times
- Been thanked: 3818 times
OK - I think Im going to spend a lot of time looking for a relay for my Gas B5244S engine...it doesn't have one.
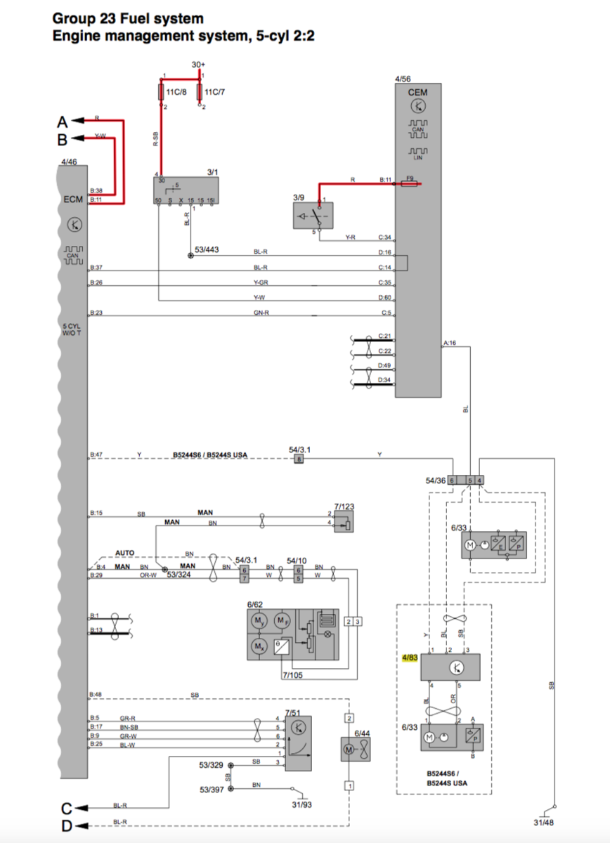
The CEM (4/56) talks to the Fuel Pump control Module (4/83) which runs the pump controlled by feedback from the pressure sensor on the rail.
Ill need VIDA to move forward and figure out what isnt talking to what.
Reference Fuel Pump control Unit 30742823 $322 at FCP in stock
The CEM (4/56) talks to the Fuel Pump control Module (4/83) which runs the pump controlled by feedback from the pressure sensor on the rail.
Ill need VIDA to move forward and figure out what isnt talking to what.
Reference Fuel Pump control Unit 30742823 $322 at FCP in stock
Empty Nester
A Captain in a Sea of Estrogen
1999-V70-T5M56 2005-V70-M56 1999-S70 VW T4 XC90-in-Red
Link to Maintenance record thread
A Captain in a Sea of Estrogen
1999-V70-T5M56 2005-V70-M56 1999-S70 VW T4 XC90-in-Red
Link to Maintenance record thread
- abscate
- MVS Moderator
- Posts: 35302
- Joined: 17 February 2013
- Year and Model: 99: V70s S70s,05 V70
- Location: Port Jefferson Long Island NY
- Has thanked: 1505 times
- Been thanked: 3818 times
PS - off topic - what kind of car warns you that the FPCU is going one week before two long trips by futzing out 1/2 mile from home, then getting you home, then promptly quitting again making diagnosis in the driveway easy?

Empty Nester
A Captain in a Sea of Estrogen
1999-V70-T5M56 2005-V70-M56 1999-S70 VW T4 XC90-in-Red
Link to Maintenance record thread
A Captain in a Sea of Estrogen
1999-V70-T5M56 2005-V70-M56 1999-S70 VW T4 XC90-in-Red
Link to Maintenance record thread
- abscate
- MVS Moderator
- Posts: 35302
- Joined: 17 February 2013
- Year and Model: 99: V70s S70s,05 V70
- Location: Port Jefferson Long Island NY
- Has thanked: 1505 times
- Been thanked: 3818 times
More info on the P2 Fuel Pump control module
This one starts out in life attached to the RHS of gas tank, accessed through the rear seat via a panel, but VIDA tells you to relocate it in the spare tire well - probably to prevent corrosion. Might be cause here.
This one starts out in life attached to the RHS of gas tank, accessed through the rear seat via a panel, but VIDA tells you to relocate it in the spare tire well - probably to prevent corrosion. Might be cause here.
Empty Nester
A Captain in a Sea of Estrogen
1999-V70-T5M56 2005-V70-M56 1999-S70 VW T4 XC90-in-Red
Link to Maintenance record thread
A Captain in a Sea of Estrogen
1999-V70-T5M56 2005-V70-M56 1999-S70 VW T4 XC90-in-Red
Link to Maintenance record thread
-
- Similar Topics
- Replies
- Views
- Last post






